
'chateau cheval blanc' by christian de portzamparc, saint-emilion, france
image © erick saillet
all images courtesy of christian de portzamparc
owners of the cheval blanc winery, baron frere and bernard arnault, wanted to capture the same elegance and attention to detail
that goes into their cherished product when designing their new establishment. french architect christian de portzamparc, winner
of the 1994 pritzker prize, conceived of the new 'chateau cheval blanc' in saint-emilion. also known as 'the winery under the hill',
the new establishment is located under a massive sweeping structure with a rooftop garden and is always visually and spatially
connected to the rows of grapevines. the entirely concrete construction boasts six curvilinear load-bearing walls that flow through
the program as the main support system connected by a series of crossbeams. the canopy is pulled away from the immense members
creating skylights that create the opportunity for natural light to subtly find its way inside.
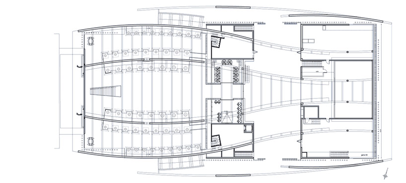
the re-purposed orangery, originally part of the chateau, now acts as the reception with a small glass enclosure connecting it to the
new project that extends views towards the exterior. proceeding to the cuvier, 52 custom-made vats line the interior partitions,
constituting the most expansive volume in the design. an open courtyard serves as a multipurpose area used for sorting and bottling
and provides an entry sequence to the workshops, a wood-clad space used for packaging. undulating polished concrete girders held
by round columns enclose the wine cellar capable of holding 566 barrels, with brick mashrabiya walls that hide the mechanical
components behind. the green roof invites the user to view the revered vineyard landscape responsible for the success of the business.

approach
image © erick saillet

context with chateauimage © erick saillet

workshop
image © erick saillet

workshopimage © erick saillet

exterior

stairs to roof gardenimage © gerard uferas

exteriorimage © gerard uferas

multipurpose spaceimage © erick saillet

multipurpose spaceimage © erick saillet

tasting roomimage © erick saillet

cuvierimage © erick saillet

vats

(left) wall structure with roof connection
(right) interior cuvier with overhead walkways

cuvierimage © erick saillet

work spaceimage © erick saillet

wine cellar
image © gerard uferas

reception and tasting roomimage © erick saillet

orangery and new structureimage © erick saillet

back entryimage © erick saillet

rooftop gardenimage © erick saillet

rooftop garden

site plan

roof plan

floor plan / level 0
green: reception area
red: cuvier
white: mechanical/technical
blue: multipurpose space
yellow: workshops

floor plan / level 0

floor plan / level 1

floor plan / level -1

section

section perspective

primary structure diagram
Không có nhận xét nào:
Đăng nhận xét